|
一、概述 DRB-L系列電動潤滑泵適用于潤滑點多,分布范圍廣,給油頻率高的雙線式干油集中潤滑系統。通過雙線分配器向潤滑部位供送潤滑脂,可滿足各種機器設備的需要,對于大型機組和生產線尤為適宜。 該系列電動潤滑泵可組成雙線環式集中潤滑系統,即系統的主管路組成環狀布置,由返回潤滑泵的主管道末端的系統壓力來控制液壓換向閥,使兩條主管道交替地供送潤滑脂的集中潤滑系統;見外形圖和外形尺寸表的規定。也可組成雙線終端式集中潤滑系統,即由主管道末端的壓力操縱閥來控制電磁。換向閥交替地使兩條主管道供送潤滑脂的集中潤滑系統,也見外形圖和外形尺寸的規定。 該系列電動潤滑泵采用雙柱塞機構,運轉可靠,減速機構置于泵體內,結構緊湊,體積小,配以相應的電控箱可以實現自動控制。
|
| |
|
二、技術參數
|
型號 |
公稱壓力MPa |
公稱流量 |
貯油器 |
配管方式 |
電機型號 |
電動機功率kW |
減速比 |
轉速r/min |
減速器潤滑油量L |
重量kg |
|
標準型號 |
引進型號 |
ml/min |
容積L |
|
DRB-L60Z-H |
U-25AL |
20 |
60 |
20 |
環式 |
A02-7124 |
0.37 |
1:15 |
100 |
1 |
140 |
|
DRB-L60Z-Z |
U-25AE |
終端式 |
160 |
|
DRB-L195Z-H |
U-4AL |
195 |
35 |
環式 |
Y802-4 |
0.75 |
1:20 |
75 |
2 |
210 |
|
DRB-L195Z-Z |
U-4AE |
終端式 |
230 |
|
DRB-L585Z-H |
U-5AL |
585 |
90 |
環式 |
Y90L-4 |
1.5 |
5 |
456 |
|
DRB-L585Z-Z |
U-5AE |
終端式 |
416 | 使用介質為錐入度不低于265(25℃,150g)1/10mm的潤滑脂(NLGI0#-2#)。 |
| DRB-L系列電動潤滑泵外形尺寸 |
|
型號 |
L |
B |
H |
L1 |
L2 |
L3 |
L4 |
B1 |
B2 |
B3 |
B4 |
|
DRB-L60Z-H |
640 |
360 |
986 |
500 |
70 |
126 |
290 |
320 |
157 |
23 |
42 |
|
DRB-L60Z-Z |
780 |
640 |
450 |
200 |
160 |
|
DRB-L195Z-H |
800 |
452 |
1056 |
600 |
100 |
125 |
300 |
420 |
226 |
39 |
42 |
|
DRB-L195Z-Z |
891 |
800 |
500 |
160 |
|
DRB-L585Z-H |
1160 |
585 |
1335 |
860 |
150 |
100 |
667 |
520 |
476 |
244 |
111 |
|
DRB-L585Z-Z |
667 |
239 |
160 | |
| |
|
型號 |
B5 |
B6 |
H1 |
H2 |
H3 |
H4 |
D |
d |
地腳螺栓 |
|
最大 |
最小 |
|
DRB-L60Z-H |
118 |
20 |
598 |
155 |
60 |
130 |
- |
269 |
14 |
M12x200 |
|
DRB-L60Z-Z |
- |
85 |
|
DRB-L195Z-H |
118 |
16 |
687 |
167 |
83 |
164 |
- |
319 |
18 |
M16x400 |
|
DRB-L195Z-Z |
- |
108 |
|
DRB-L585Z-H |
226 |
22 |
815 |
170 |
110 |
248 |
277 |
457 |
22 |
M20x500 |
|
DRB-L585Z-Z |
- |
135 |
- | |
| |
| 三、型號說明 |
|
|
四、圖型符號
|
|
|
|
| |
|
五、接線指示

|
|
| |
| 六、工作原理 |
該系列電動潤滑泵由柱塞泵、貯油器、換向閥、電動機等部分組成。柱塞泵在電動機的驅動下,從貯油器吸入潤滑脂,壓送到換向閥,通過換向閥交替地沿兩個出油口輸送出去,當一個出油口壓送潤滑脂時,另一出油口與貯油器接通卸荷。 環式結構電動潤滑泵配用液壓換向閥,有四個接口,外接兩根供油主管分別由兩根供油管引回的回油管,依靠回油管內油脂的油壓推動換向閥換向。 終端式結構電動潤滑泵配用電磁換向閥,有二個接口,外接二根供油主管,依靠電磁鐵的得失電實現換向供油。 柱塞泵換向閥的動作原理詳見使用說明書。 |
| |
七、使用說明 1、該系列電動潤滑泵應安裝在環境溫度合適,灰塵少,振動小,便于調整、檢查、維護保養及補脂方便的地方并且盡可能布置在系統的中心位置,縮短系統配管長度,保持最低壓力降,使泵能產生足以克服潤滑點阻力的壓力。 2、使用前先向柱塞泵的減速腔內加入N220的工業齒輪油至油標規定液面。 3、向貯油器內補脂使用DJB-V70型電動加油泵從潤滑泵的補給口補進,使用的潤滑脂應清潔,不允許夾雜有污物。 4、潤滑泵的回轉方向是單向的,使用時必須按電機上旋向牌規定的旋向接線使用。 5、泵溢流閥的標準設定壓力為23MPa,可以在0~20MPa范圍內任意調節,在使用時不允許超過泵公稱壓力的15%(23MPa)。 6、環式潤滑泵的液壓換向閥的設定壓力按5MPa調定。 7、該系列電動潤滑泵為室內安裝型,在室外或環境惡劣的場合使用時,必須采取防護措施。 |
| |
| 八、外型圖 |
  |
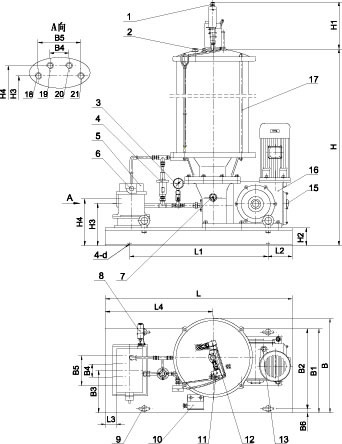
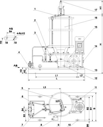
| DRB-L60Z-H、DRB-L195Z-H型電動泵外形圖 DRB-L585Z-H型電動泵外形圖 |
| |
  |
| DRB-L60Z-Z, DRZB-L195Z-Z型電動泵外形圖 DRB-L585Z-Z型電動泵外形圖 |
| |
九、訂貨須知 1、本系列電動潤滑泵配用以下四種形式標準電控箱,可根據不同控制要求選擇。 1.1 DEA-2E型終端式電控箱 1.2 DEA-2L型環式電控箱 1.3 R1902型環式帶補脂控制電控箱 1.4 R1904型終端式帶補脂控制電控箱 2、本系列電動潤滑泵分部件訂購按下表選型 |
| |