| ||||||||||||||||||||||
| 二、技術參數 | ||||||||||||||||||||||
| ||||||||||||||||||||||
| 給油口數為單數時,其中有一給油口的給油量為額定給油量的2倍。 使用介質為錐入度不低于220(25℃,150g)1/10mm的潤滑脂(NLGI0#~3#)或粘度等級大于N68的潤滑油,工作環境溫度為-20℃~80℃。 | ||||||||||||||||||||||
| 三、型號說明 | ||||||||||||||||||||||
![]() | ||||||||||||||||||||||
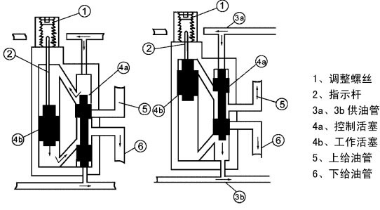
| 四、工作原理 | ||||||||||||||||||||||
![]() | ||||||||||||||||||||||
| 雙線分配器與每兩個潤滑點相連通的活塞孔中分別有一個控制活塞和一個工作活塞,兩個進油口分別與兩條供油管3a、3b連接,當供油管一條加壓力時,另一條則卸荷。 如上圖所示,由泵輸送來的潤滑脂,經供油管3a進入分配器控制活塞的上端,控制活塞首先向下移動(這時控制活塞下端擠壓的潤滑脂則進入卸荷的供油管3b),使工作活塞的上腔與控制活塞的上腔連通,然后工作活塞向下移動,這時受工作活塞的擠壓的潤滑脂經過控制活塞的環形槽被壓送到出油口6至潤滑點,完成第一周期的給油動作。切換至供油管3b供油開始第二周期的給油動作,分配器活塞按相同的順序反向進行前述動作,出油口5排送潤滑脂。 | ||||||||||||||||||||||
| 五、外形尺寸 | ||||||||||||||||||||||
![]() | ||||||||||||||||||||||
|
六、使用說明 七、常見故障及排除 八、訂貨須知 | ||||||||||||||||||||||
上一個: PSQ型片式給油器 下一個: FVTLG3油氣分配器




